Infill Development – Kildare

6 Residential Units
We secured planning permission for a compact infill development comprising six modern residential units in Kildare. The design optimises land use while respecting the surrounding neighbourhood character.

Townhouse Scheme – Gloucestershire

Acquisition and Design of 6 Townhouses
Acting for a private client, we oversaw the acquisition and full design of a contemporary 6-unit townhouse development. The scheme enhances urban density while delivering stylish, functional living spaces.

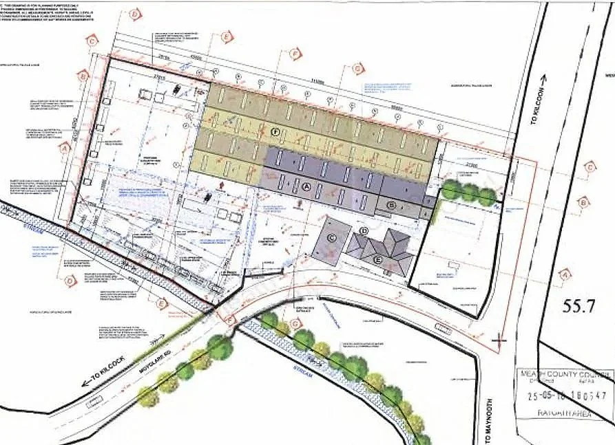
Distribution Hub Expansion - Moyglare

Ancillary Land Acquisition
We facilitated the acquisition of adjacent land to allow the strategic expansion of an existing logistics hub in Moyglare. This addition enables operational growth and future scalability for our client.

Planning and Development Advisory

Major Land Promotion – Maynooth & Environs
We supported the promotion of 65 acres of farmland through the local plan process, identifying capacity for over 500 new homes. We delivered strategic planning insight to support the sustainable build out of this site.

Backlands Development – Kildare

Residential Redevelopment Strategy
We unlocked a challenging backlands site in Kildare, creating a viable development proposal that aligns with local planning policy while maximising land potential for residential use.